Curtain Wall

ÁøÈïâȣ

µ¶ÀÏ ½Ã½ºÅÛ Ã¢È£ Àü¹® ±â¾÷ ÁøÈïâȣ

ÁøÈïâȣ´Â ±¸ÀÔ, ½Ã°ø, A/S±îÁö Àü°úÁ¤¿¡ °ÉÃÄ Ã¥ÀÓ ¿î¿µÇϰí ÀÖÀ¸¸ç, uPVC ¹× ¾Ë·ç¹Ì´½ ½Ã½ºÅÛâȣ, Ŀư¿ù, Çö°ü¹®, À¯¸® ³­°£ µî Á¾ÇÕÀûÀΠâȣ ¼Ö·ç¼ÇÀ» Á¦°øÇÕ´Ï´Ù.

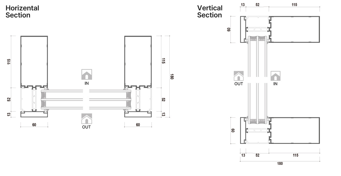
180mm construction depth

JAC 180

180mm ÇÁ·¹ÀÓÀº º¸´Ù ³ôÀº ±¸Á¶ ¾ÈÁ¤¼º°ú ³»±¸¼º,´Ü¿­¼º, µðÀÚÀÎÀÇ À¯¿¬¼ºÀ» °®Ãá Ŀư¿ù ½Ã½ºÅÛÀÔ´Ï´Ù.

Á¦Ç° Àû¿ë

Á¦Ç° ±Ô°Ý

ÇÁ·ÎÆÄÀÏ µÎ²² 180 mm
´Ü¿­¼º´É 43T(³ëÃâ&È÷µç Ŀư¿ù) - Å×½ºÆ®Áß
24T(³ëÃâ Ŀư¿ù) - 1.169 W/§³K (Single Low-E)
24T(È÷µç Ŀư¿ù) - 1.195 W/§³K (Single Low-E)
±â¹Ð¼º´É 43T - Å×½ºÆ®Áß
24T - 1µî±Þ
À¯¸® 43T - 3ÁßÀ¯¸®
24T - 2ÁßÀ¯¸®
»çÀÌÁî ÇöÀå ÇùÀÇ

TEST REPORT

JAC 180
±â°ü À¯¸®±¸ºÐ ǰÁ¾ / ±¸¼º ¿­°ü·ùÀ²
(W/§³K)
¼ÒºñÈ¿À²µî±Þ Åë°ú Áö¿ª
(ÁÖ)ÄÉÀ̾¾¾¾ ±Û¶ó½º
¿©ÁÖ±â¼ú¿¬±¸¼Ò
3ÁßÀ¯¸® 43T 5LE(D) + 14Ar + 5CL + 14Ar + 5LE(D) / ³ëÃâ Å×½ºÆ®Áß - -
3ÁßÀ¯¸® 43T 5LE(D) + 14Ar + 5CL + 14Ar + 5LE(D) / È÷µç Å×½ºÆ®Áß - -
2ÁßÀ¯¸® 24T 5LE(One) + 14Ar + 5CL / ³ëÃâ 1.169 1µî±Þ ÀüÁö¿ª
2ÁßÀ¯¸® 24T 5LE(One) + 14Ar + 5CL / È÷µç 1.195 1µî±Þ ÀüÁö¿ª
FAMILY SITE

Contact

(ÁÖ)ÁøÈïÀÎÅͳ»¼Å³¯ÀÇ Á¦Ç°°ü·Ã
±Ã±ÝÇϽŠ»çÇ×À» ¹®ÀÇÇØÁÖ¼¼¿ä.

Detail view

Download

(ÁÖ)ÁøÈïÀÎÅͳ»¼Å³¯ÀÇ ´Ù¾çÇÑ Á¦Ç°À»
Ä«´Þ·Î±×·Î È®ÀÎÇØº¸¼¼¿ä!

Detail view